麹町駅徒歩1分!白を基調としたスタイリッシュなセットアップオフィス

エントランス

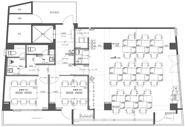
6名用ミーティングルーム

もう1カ所の6名用ミーティングルーム

WEBブース

20名程の席を想定したワークスペース


エントランス

6名用ミーティングルーム

もう1カ所の6名用ミーティングルーム

WEBブース

20名程の席を想定したワークスペース

以下は、物件の周辺マップです。
詳細住所はお問い合わせください。

03-6821-5799
平日 9:00~18:00