馬喰横山駅徒歩3分!ナチュラル×モダンな築浅セットアップオフィス

条件検索
エリアで探す
すべて千代田区中央区港区新宿区渋谷区品川区文京区その他
坪数で探す
すべて~30坪30坪~50坪50坪~70坪70坪~100坪100坪~
人数で探す
すべて~10人10人~20人20人~30人30人~50人50人~
こだわり条件で探す
すべて駅から3分以内ラウンジスペース家具付き敷金3か月以下会議室2つ以上WEBブース天井スケルトン会議室1つ共用部ラウンジあり共用部会議室ありバルコニー屋上テラス男女別トイレリフレッシュスペースフルセットアップハーフセットアップカフェ風クリエイティブシックビンテージモダン個性的明るい落ち着いた開放感高級感駅から5分以内複数路線利用可能即入居敷金0相談可原状回復工事免除坪単価@20,000円以下居抜き築浅
もっと見る

エントランスの様子

4名用会議室

ワークスペース

ワークスペース奥の個室はWEBブースとしても便利

お手洗い

給湯スペース

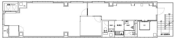
図面

周辺マップ

以下は、物件の周辺マップです。
詳細住所はお問い合わせください。