新橋エリア!ニーズに合わせた貸室+会議室の組合せ型セットアップオフィス




眺望

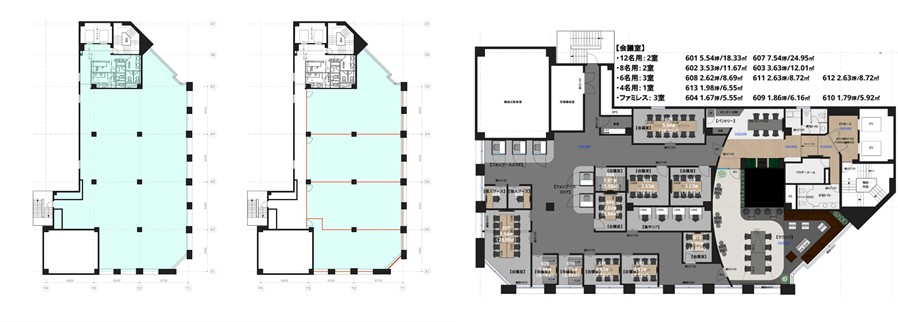
4名~12名まで利用ができる会議室を多数ご用意。貸室フロア+会議室をセットでお借りいただくことができます

左側の貸室と別フロアにある会議室を組み合わせて賃貸が可能です
【共有ラウンジ】

貸室フロアとは別に完成予定のラウンジエリア

こちらはどなたでもご利用いただくことが可能です

WEBブースもご利用いただけます




眺望

4名~12名まで利用ができる会議室を多数ご用意。貸室フロア+会議室をセットでお借りいただくことができます

左側の貸室と別フロアにある会議室を組み合わせて賃貸が可能です
【共有ラウンジ】

貸室フロアとは別に完成予定のラウンジエリア

こちらはどなたでもご利用いただくことが可能です

WEBブースもご利用いただけます
以下は、物件の周辺マップです。
詳細住所はお問い合わせください。

03-6821-5799
平日 9:00~18:00