岩本町駅徒歩2分!内装什器付+自由に使えるホワイトスペースが魅力のオフィス

会議室入口

6~8名で利用ができる会議室

ワークスペースへの通路

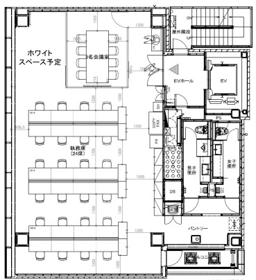
24名分の席を設置済み

ワークスペースの一部には、お客様にて自由に空間を使えるホワイトスペースがあります

個人ロッカー

収納スペースも完備!

会議室入口

6~8名で利用ができる会議室

ワークスペースへの通路

24名分の席を設置済み

ワークスペースの一部には、お客様にて自由に空間を使えるホワイトスペースがあります

個人ロッカー

収納スペースも完備!
以下は、物件の周辺マップです。
詳細住所はお問い合わせください。

03-6821-5799
平日 9:00~18:00