小川町・淡路町駅徒歩3分!ガラス張りの間仕切りで開放感のあるオフィス

待合スペースやラウンジスペースに最適

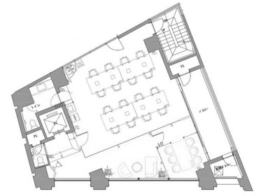
ガラス張りの間仕切りが印象的


6名用ミーティングルームが1カ所

16名程が働けるワークスペース

待合スペースやラウンジスペースに最適

ガラス張りの間仕切りが印象的


6名用ミーティングルームが1カ所

16名程が働けるワークスペース
以下は、物件の周辺マップです。
詳細住所はお問い合わせください。

03-6821-5799
平日 9:00~18:00