屋上テラス付き!シックでお洒落なセットアップオフィス

エントランスの様子※同タイプ別フロアの写真です

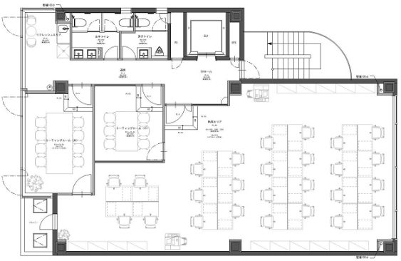
会議室へのアプローチ

6名用会議室

8名用会議室

26名程のワークスペ―ス


リフレッシュスペース

屋上テラス

エントランスの様子※同タイプ別フロアの写真です

会議室へのアプローチ

6名用会議室

8名用会議室

26名程のワークスペ―ス


リフレッシュスペース

屋上テラス
以下は、物件の周辺マップです。
詳細住所はお問い合わせください。

03-6821-5799
平日 9:00~18:00