恵比寿の新築ビルに誕生!企業の成長やチャレンジを支えるフルセットアップオフィス

オフィスエントランスのイメージ図

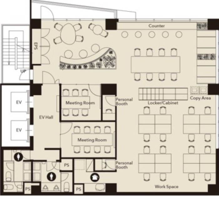
6・8名用会議室を設置予定

窓側のカウンター席8席

8名用大テーブル

キャビネットやロッカーも完備

16名分の席があるワークスペース、WEBブースは2か所

レイアウトイメージ図面
※掲載画像はイメージ図のため、今後変更ととなる場合がございます。

オフィスエントランスのイメージ図

6・8名用会議室を設置予定

窓側のカウンター席8席

8名用大テーブル

キャビネットやロッカーも完備

16名分の席があるワークスペース、WEBブースは2か所

レイアウトイメージ図面
※掲載画像はイメージ図のため、今後変更ととなる場合がございます。
以下は、物件の周辺マップです。
詳細住所はお問い合わせください。

03-6821-5799
平日 9:00~18:00