市ヶ谷駅徒歩4分!モダンデザインが印象的なフルセットアップオフィス

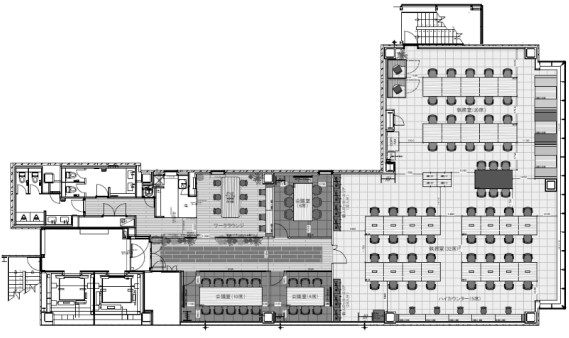
エントランスの様子

ラウンジ

6名用会議室

6名用会議室

10名用会議室

57名分の席を設置したワークスペース

ハイカウンターデスク

WEBブース

窓側のファミレス席

エントランスの様子

ラウンジ

6名用会議室

6名用会議室

10名用会議室

57名分の席を設置したワークスペース

ハイカウンターデスク

WEBブース

窓側のファミレス席
以下は、物件の周辺マップです。
詳細住所はお問い合わせください。

03-6821-5799
平日 9:00~18:00