神田駅徒歩3分!駅近・好立地のコンパクトなセットアップオフィス


4名用会議室

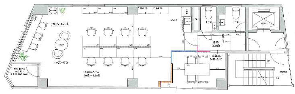
ワークスペース全体の様子

8名分のワークデスクを設置済み

窓側のカウンター席

キャビネット/個人ロッカー
※別フロアの同仕様写真となりますので、実際と異なる場合は現況を優先いたします。


4名用会議室

ワークスペース全体の様子

8名分のワークデスクを設置済み

窓側のカウンター席

キャビネット/個人ロッカー
※別フロアの同仕様写真となりますので、実際と異なる場合は現況を優先いたします。
以下は、物件の周辺マップです。
詳細住所はお問い合わせください。

03-6821-5799
平日 9:00~18:00