閑静なウォーターフロントエリア!角地に立地し大きな窓面から自然光が採れるオフィス

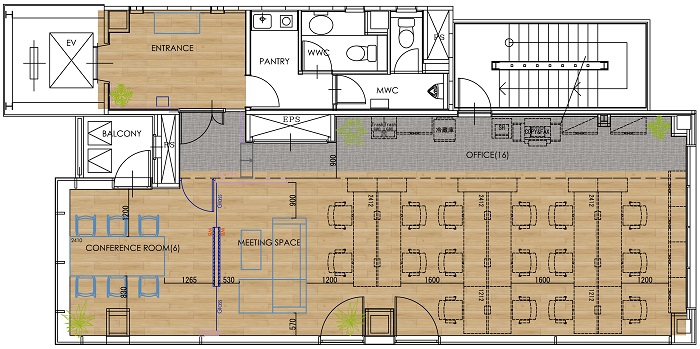
エントランスの様子

6名用会議室


ワークスペース

16~20名程で利用ができる広さ

※掲載画像にある家具、家電、什器の設置はございません。

エントランスの様子

6名用会議室


ワークスペース

16~20名程で利用ができる広さ

※掲載画像にある家具、家電、什器の設置はございません。
以下は、物件の周辺マップです。
詳細住所はお問い合わせください。

03-6821-5799
平日 9:00~18:00