すぐに業務開始出来る!人気エリアの家具付き、インターネット完備のコンパクトオフィス

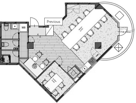
エントランス

ラウンジエリア

6名用会議室が1つ


ワークスペースには10名分の家具が設置済み

WEBブースも1つ設置されています

WEBブース内部※参考写真

ワークスペース奥にはベランダがあります

ワークスペース内のキッチン

お手洗いは男女別になっています

エントランス

ラウンジエリア

6名用会議室が1つ


ワークスペースには10名分の家具が設置済み

WEBブースも1つ設置されています

WEBブース内部※参考写真

ワークスペース奥にはベランダがあります

ワークスペース内のキッチン

お手洗いは男女別になっています
以下は、物件の周辺マップです。
詳細住所はお問い合わせください。

03-6821-5799
平日 9:00~18:00