人形町駅徒歩1分!デザイン性と温もりが調和する居抜きオフィス

エントランス

ワークラウンジ

会議室

ファミレス席

現在は50名程で利用しているワークスペース

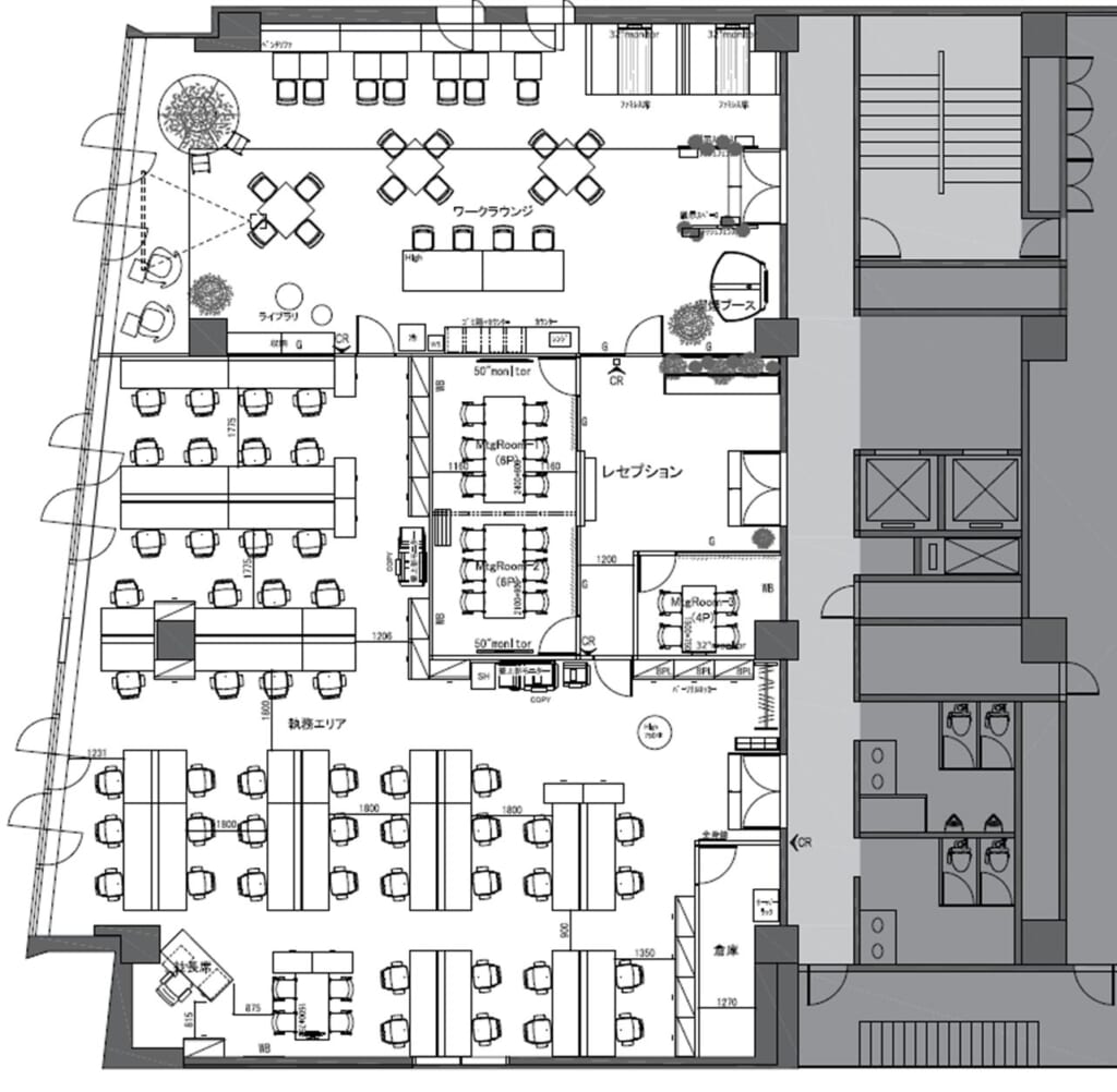
レイアウト図
※家具の残置はご相談が可能ですので、ご要望がありましたらご相談ください。

エントランス

ワークラウンジ

会議室

ファミレス席

現在は50名程で利用しているワークスペース

レイアウト図
※家具の残置はご相談が可能ですので、ご要望がありましたらご相談ください。
以下は、物件の周辺マップです。
詳細住所はお問い合わせください。

03-6821-5799
平日 9:00~18:00