閑静な文京区エリア!内装の手間いらずのシンプルな居抜きオフィス

建物の外からダイレクトインできます

エントランスの様子

ワークスペース側からの入り口の様子

フリースペースを作ったり、書庫や複合機設置など多様な使い方ができるスペース

3部屋個室があります

8名用会議室が設置できる広さ

4名用会議室が設置できる広さ

8名用会議室が設置できる広さ


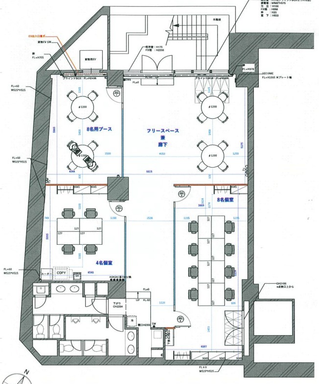
参考レイアウト図 ※家具の設置はありませんので、収容人数の参考としてご参照ください。

建物の外からダイレクトインできます

エントランスの様子

ワークスペース側からの入り口の様子

フリースペースを作ったり、書庫や複合機設置など多様な使い方ができるスペース

3部屋個室があります

8名用会議室が設置できる広さ

4名用会議室が設置できる広さ

8名用会議室が設置できる広さ


参考レイアウト図 ※家具の設置はありませんので、収容人数の参考としてご参照ください。
以下は、物件の周辺マップです。
詳細住所はお問い合わせください。

03-6821-5799
平日 9:00~18:00