渋谷エリアの新オフィス!シック×モダンなデザインのセットアップオフィス

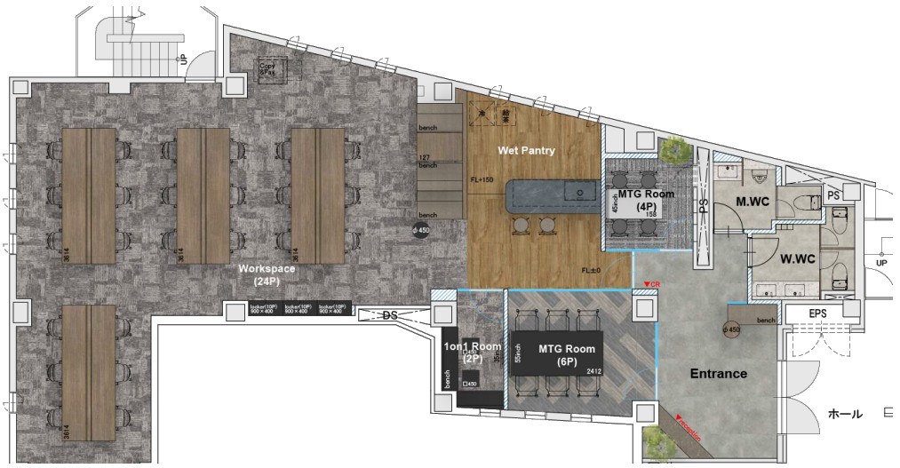
エントランスの様子

4・6名用会議室を設置予定

パントリーエリア / ファミレス席 / 1on1ミーティングができる個室を設置予定

24名分の席を設置予定のワークスペース
※掲載画像はイメージ図となるため、今後変更となる場合がございます。

エントランスの様子

4・6名用会議室を設置予定

パントリーエリア / ファミレス席 / 1on1ミーティングができる個室を設置予定

24名分の席を設置予定のワークスペース
※掲載画像はイメージ図となるため、今後変更となる場合がございます。
以下は、物件の周辺マップです。
詳細住所はお問い合わせください。

03-6821-5799
平日 9:00~18:00