大門・浜松町エリア!スタイリッシュで洗練された内装の居抜きオフィス

条件検索
エリアで探す
すべて千代田区中央区港区新宿区渋谷区その他
坪数で探す
すべて~30坪30坪~50坪50坪~70坪70坪~100坪100坪~
人数で探す
すべて~10人10人~20人20人~30人30人~50人50人~
こだわり条件で探す
すべて駅から3分以内ラウンジスペース家具付き敷金3か月以下会議室2つ以上WEBブース天井スケルトン会議室1つ共用部ラウンジあり共用部会議室ありバルコニー屋上テラス男女別トイレリフレッシュスペースフルセットアップハーフセットアップカフェ風クリエイティブシックビンテージモダン個性的明るい落ち着いた解放感高級感駅から5分以内複数路線利用可能即入居敷金0相談可原状回復工事免除坪単価@20,000円以下居抜き築浅
もっと見る

エントランス

リフレッシュスペース

6名用会議室

10名用会議室が2室

会議室は2重ガラスとなっており、遮音に配慮した仕様です

10名用会議室を繋げて20名用の会議室にすることが可

現在はプライべートオフィスとして使っている個室。WEBブースや1on1ミーティングとして転用ができそうです

ワークスペース

レイアウトにより、30~40名程度で利用できる広さ

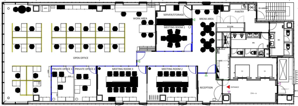
レイアウト図

※家具の設置はございません。        

※実物と異なる場合は、現況を優先いたします。

周辺マップ

以下は、物件の周辺マップです。
詳細住所はお問い合わせください。