五反田エリア!アースカラーと木目調デザインで落ち着きのあるオフィス

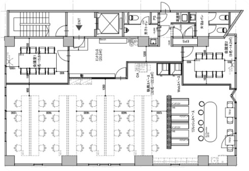
エントランス


6名用会議室

8名用会議室

ワークスペース

32名程の席が設置できる広さ

ラウンジスペース

陽射しが入る明るい空間


WEBブース

エントランス


6名用会議室

8名用会議室

ワークスペース

32名程の席が設置できる広さ

ラウンジスペース

陽射しが入る明るい空間


WEBブース
以下は、物件の周辺マップです。
詳細住所はお問い合わせください。

03-6821-5799
平日 9:00~18:00