閑静な松濤エリア!セットアップとラウンジで企業の成長を支えるオフィス

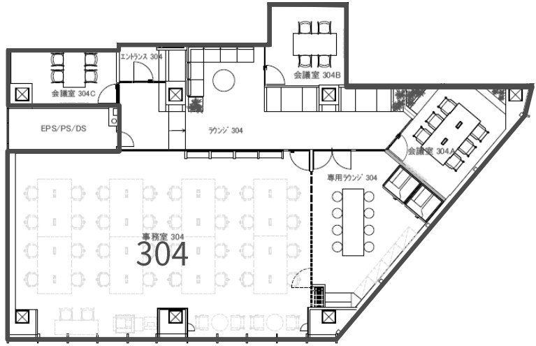
エントランス


ラウンジスペース

4名用会議室

4名用会議室

ファミレス席

ハイカウンター

ワークスペース

35名程で利用ができる広さ
【B1~1Fの共有ラウンジ】





エントランス


ラウンジスペース

4名用会議室

4名用会議室

ファミレス席

ハイカウンター

ワークスペース

35名程で利用ができる広さ
【B1~1Fの共有ラウンジ】




以下は、物件の周辺マップです。
詳細住所はお問い合わせください。

03-6821-5799
平日 9:00~18:00