浜松町駅徒歩3分!築浅ビルに完成するモダンなセットアップオフィス

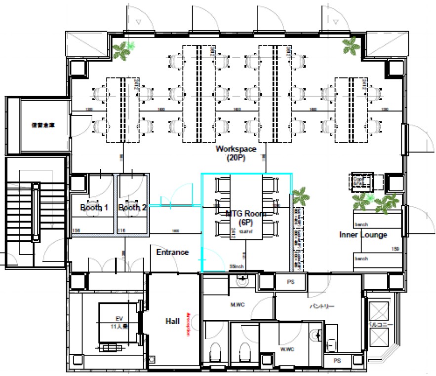
エントランス


6名用会議室

ワークスペース

20名程で利用ができる広さ


ファミレス席

WEBブース
【1F共有スペース】

1Fには共有の4名用会議室

エントランス


6名用会議室

ワークスペース

20名程で利用ができる広さ


ファミレス席

WEBブース
【1F共有スペース】

1Fには共有の4名用会議室
以下は、物件の周辺マップです。
詳細住所はお問い合わせください。

03-6821-5799
平日 9:00~18:00