神田エリア!シックで落ち着きのある内装デザインのセットアップオフィス

エントランス

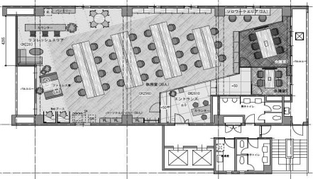
4・6名用会議室を設置予定

リフレッシュエリア

30名分の席を設置予定
※掲載画像はイメージ図となるため、今後変更となる場合がございます。

エントランス

4・6名用会議室を設置予定

リフレッシュエリア

30名分の席を設置予定
※掲載画像はイメージ図となるため、今後変更となる場合がございます。
以下は、物件の周辺マップです。
詳細住所はお問い合わせください。

03-6821-5799
平日 9:00~18:00