市ヶ谷・九段下エリア!四季折々の自然が楽しめる街並みが魅力のオフィス

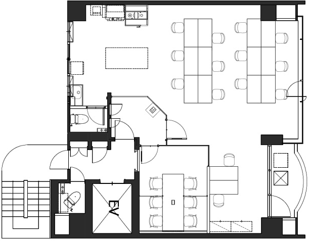
エントランス

6名用会議室を設置予定

10~15名程で利用ができるワークスペース
※掲載画像はイメージ図となるため、変更となる場合がございます。

エントランス

6名用会議室を設置予定

10~15名程で利用ができるワークスペース
※掲載画像はイメージ図となるため、変更となる場合がございます。
以下は、物件の周辺マップです。
詳細住所はお問い合わせください。

03-6821-5799
平日 9:00~18:00