秋葉原駅徒歩5分!ホワイト×木目調で統一した落ち着きのある居抜きオフィス

エントランスからの通路

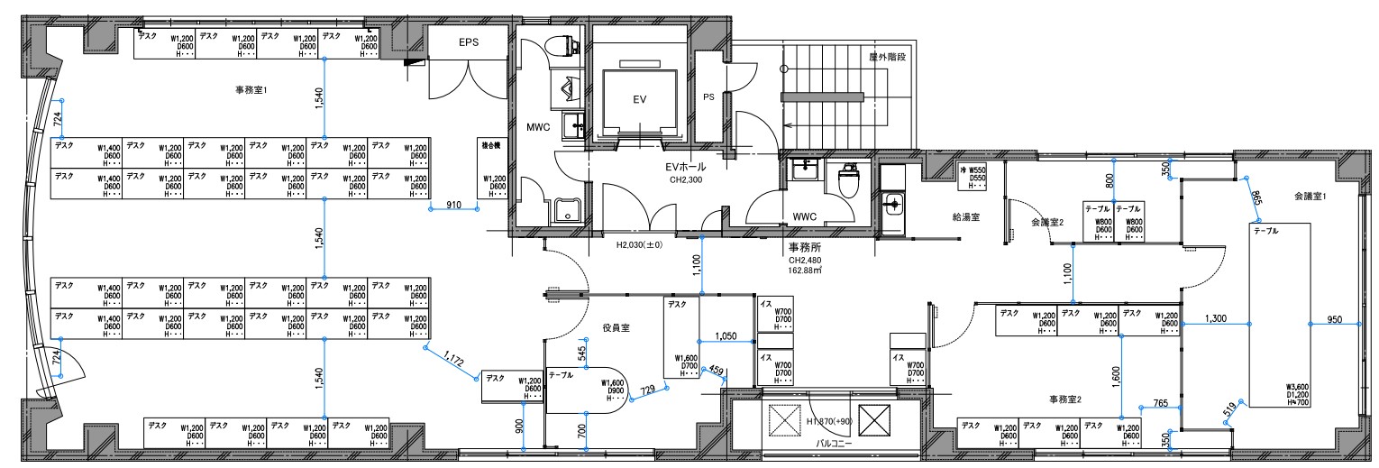
現在は6名分のワークデスクを置いて使っている個室。10名程で利用ができる会議室もございます。

30名程で利用されているワークスペース


エントランスからの通路

現在は6名分のワークデスクを置いて使っている個室。10名程で利用ができる会議室もございます。

30名程で利用されているワークスペース

以下は、物件の周辺マップです。
詳細住所はお問い合わせください。

03-6821-5799
平日 9:00~18:00