最上階の特権!専用の広々バルコニー付きフルセットアップオフィス

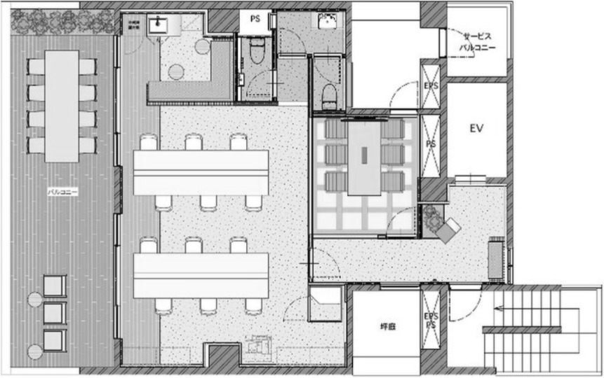
エントランス

内装はラボをイメージしたものになっています

6名用会議室

ワークスペースには12名分の家具を設置

WEBブースは1つ設置されます

専用で使用可能な広々バルコニー付き

エントランス

内装はラボをイメージしたものになっています

6名用会議室

ワークスペースには12名分の家具を設置

WEBブースは1つ設置されます

専用で使用可能な広々バルコニー付き
以下は、物件の周辺マップです。
詳細住所はお問い合わせください。

03-6821-5799
平日 9:00~18:00