小伝馬町駅徒歩3分!エントランスからワークスペースまで温かみ高級感溢れるオフィス

エントランス

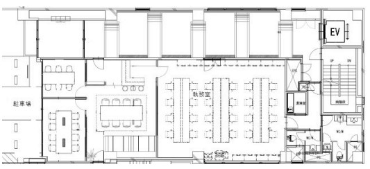
6・8名用会議室を設置予定

ラウンジエリア

20~24名程で利用ができる広さ、WEBブース2室設置予定 ※家具の設置はございません

エントランス

6・8名用会議室を設置予定

ラウンジエリア

20~24名程で利用ができる広さ、WEBブース2室設置予定 ※家具の設置はございません
以下は、物件の周辺マップです。
詳細住所はお問い合わせください。

03-6821-5799
平日 9:00~18:00