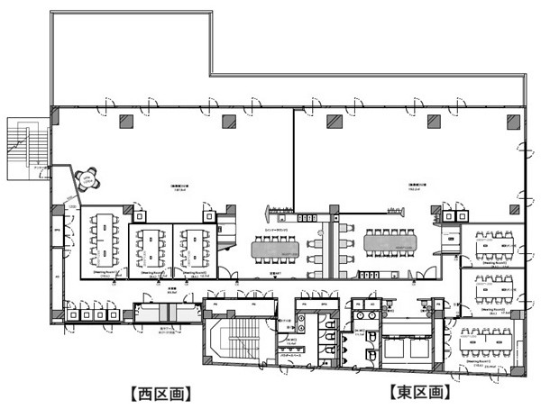
飯田橋エリア!温かみのある木目調で統一されたセットアップオフィス

ラウンジエリア



8名用会議室

ワークスペース

共有廊下にあるWEBブースはもう一つのテナント様と2台分ずつ追加で利用ができるようになっています

こちらも共有廊下にある3名程で利用ができるソファルーム。ナップタイムや、数名でリフレッシュにも使える個室です


ラウンジエリア



8名用会議室

ワークスペース

共有廊下にあるWEBブースはもう一つのテナント様と2台分ずつ追加で利用ができるようになっています

こちらも共有廊下にある3名程で利用ができるソファルーム。ナップタイムや、数名でリフレッシュにも使える個室です

以下は、物件の周辺マップです。
詳細住所はお問い合わせください。

03-6821-5799
平日 9:00~18:00