四谷三丁目駅徒歩2分!気持ちの良い自然素材空間のセットアップオフィス

入口周辺の様子

4名用会議室

8名用会議室

キッチン付きのオープンスペース

ワークスペース

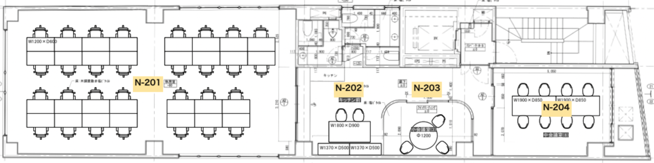
30名分の席を設置したワークスペース

入口周辺の様子

4名用会議室

8名用会議室

キッチン付きのオープンスペース

ワークスペース

30名分の席を設置したワークスペース
以下は、物件の周辺マップです。
詳細住所はお問い合わせください。

03-6821-5799
平日 9:00~18:00