都会的でスタイリッシュ!こだわりを感じるセットアップオフィス

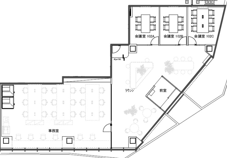
エントランス付近の様子

ラウンジエリア

4名用会議室

6名用会議室

ワークスペース

外からの動線もある区画です
【B1~1F共有ラウンジ】





エントランス付近の様子

ラウンジエリア

4名用会議室

6名用会議室

ワークスペース

外からの動線もある区画です
【B1~1F共有ラウンジ】




以下は、物件の周辺マップです。
詳細住所はお問い合わせください。

03-6821-5799
平日 9:00~18:00