恵比寿駅徒歩3分!窓面が大きく開放感が魅力のセットアップオフィス

オフィスエントランスのイメージ図

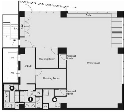
6・8名用会議室を設置予定

窓側のカウンター席8席 ※イメージ図です

※家具の設置はございません


WEBブースは2か所
※掲載画像はイメージ図のため、今後変更ととなる場合がございます。

オフィスエントランスのイメージ図

6・8名用会議室を設置予定

窓側のカウンター席8席 ※イメージ図です

※家具の設置はございません


WEBブースは2か所
※掲載画像はイメージ図のため、今後変更ととなる場合がございます。
以下は、物件の周辺マップです。
詳細住所はお問い合わせください。

03-6821-5799
平日 9:00~18:00